Lisboa, Loures, Sacavém e Prior Velho, Centro (Prior Velho)
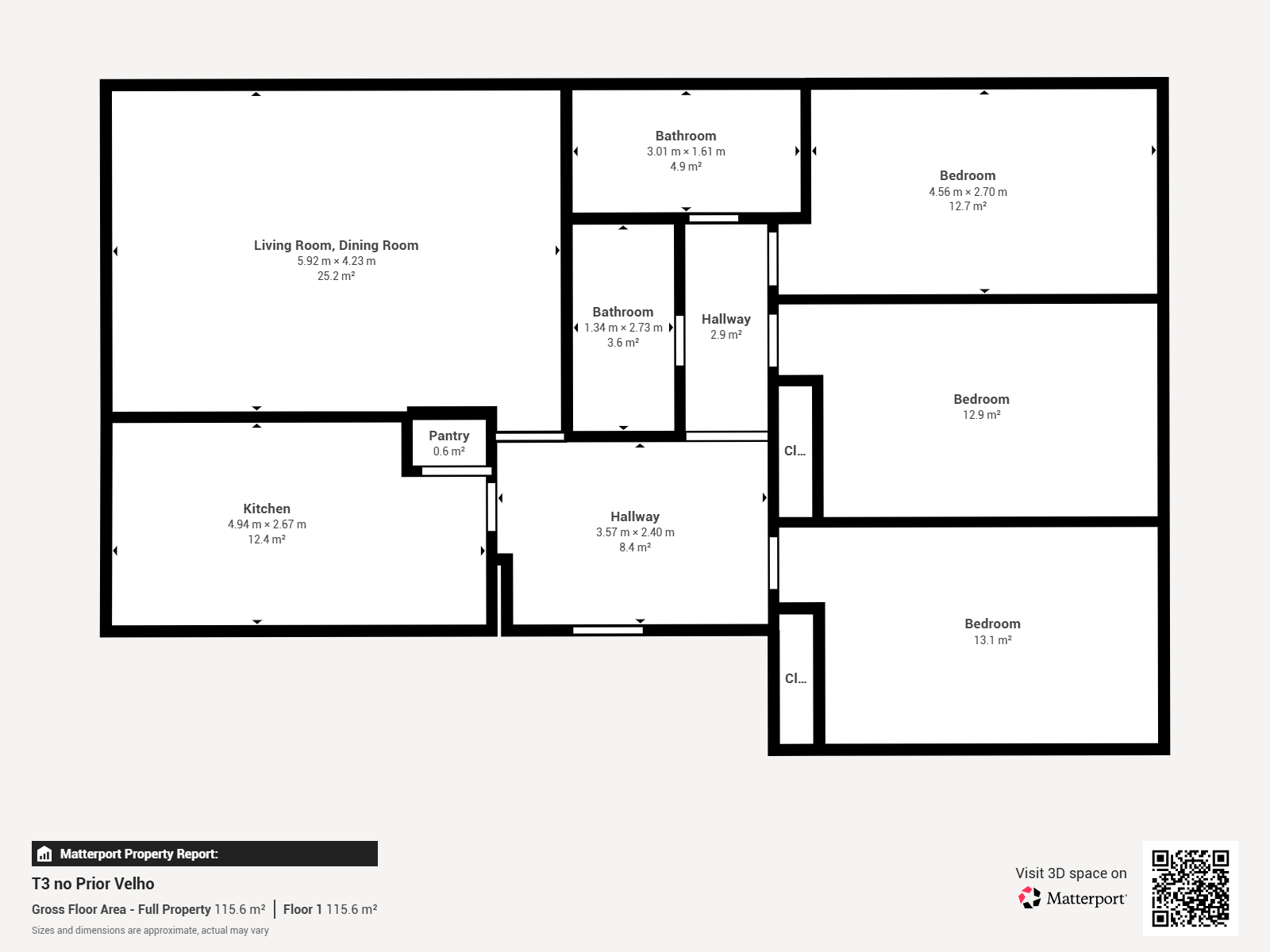
🏡 T3 Luminoso no Prior Velho – Perto de Tudo o Que Precisa!
Deixe-se encantar por este fantástico apartamento T3, situado no coração do Prior Velho.
Com uma localização privilegiada, próxima do Aeroporto de Lisboa, escolas, comércio e principais acessos tanto A1, 2ª Circular, Eixo Norte-Sul.
Este é o lar ideal para quem procura conforto, luz e conveniência.
☀️ Luz natural em todas as divisões – quartos, sala e cozinha com excelente exposição solar.
🚗 Lugar de estacionamento incluído – conforto e segurança no dia a dia.
🏢 Prédio cuidado, com duas entradas e dois elevadores.
📦 Arrecadação para arrumação extra.
🌆 Zona tranquila e familiar, com todos os serviços a poucos passos de casa.
O apartamento pertence a um único proprietário e encontra-se em excelente estado de conservação, pronto a habitar!
Se procura um T3 espaçoso, cheio de luz e bem localizado, não perca esta oportunidade.
Ideal para famílias ou investimento, numa zona em constante valorização.
💫 Mais do que uma casa – o seu novo lar no Prior Velho.
📞 Marque já a sua visita!